




1 / 5
R 107 604 200
Industrial Property for Sale in Elandsfontein, Gauteng
120 Barbara Rd, Elandsfontein Rail, Germiston
24686 m²
R 4359 p/m²
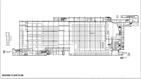
24,686m² Fully Let Blue-Chip Logistics Investment in Elandsfontein
This 24,686m² logistics facility for sale in Elandsfontein, Germiston presents a compelling investment opportunity within one of Gauteng’s most established industrial nodes. The property benefits from dual access off North Reef Road and Serenade Road, allowing…
* Final Costs may vary depending on extras. All prices exclude VAT.Property Photos





Image
Image
Image
Image