








1 / 9
R 75 430 p/m *
Industrial Property to Lease in Blackheath Industrial, Western Cape
794 m²
R 95 p/m²
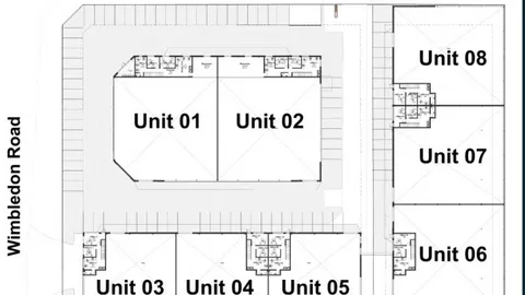
794m² Warehouse To Let in Blackheath
Modern combined warehouse facility available to let in Wimbledon Industrial Estate, Blackheath. Two units merged into one efficient 1,616m² operational space with a 250m² office component including reception, kitchen and ablutions.
Key Features:
• Warehouse:…
Property Photos








