





















1 / 22
R 1 261 660 p/m *
Industrial Property to Lease in Witfontein, Gauteng
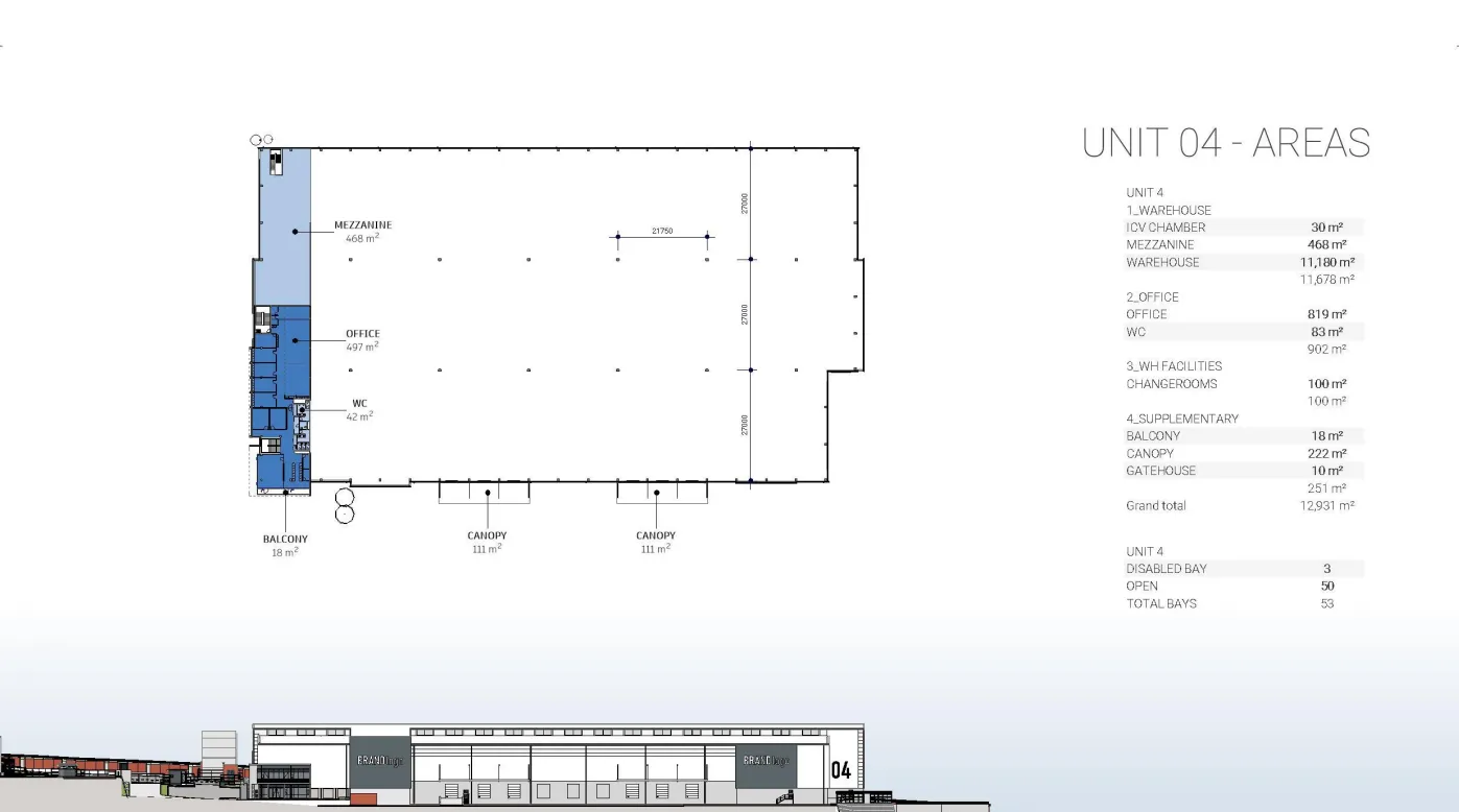
12680 m²
R 100 p/m²
New-Build 12,680m² High-Spec Logistics Warehouse – Occupation December 2026
Warehouse 4 forms part of a brand-new industrial development designed to meet the demands of modern logistics, warehousing, and distribution users. Offering a total GLA of 12,680m², the facility combines a large, efficient warehouse with a modern office compon…
* Final Costs may vary depending on extras. All prices exclude VAT.Property Photos








